124㎡四居现代简约风格首创天禧68#
发布时间:
2020年06月19日
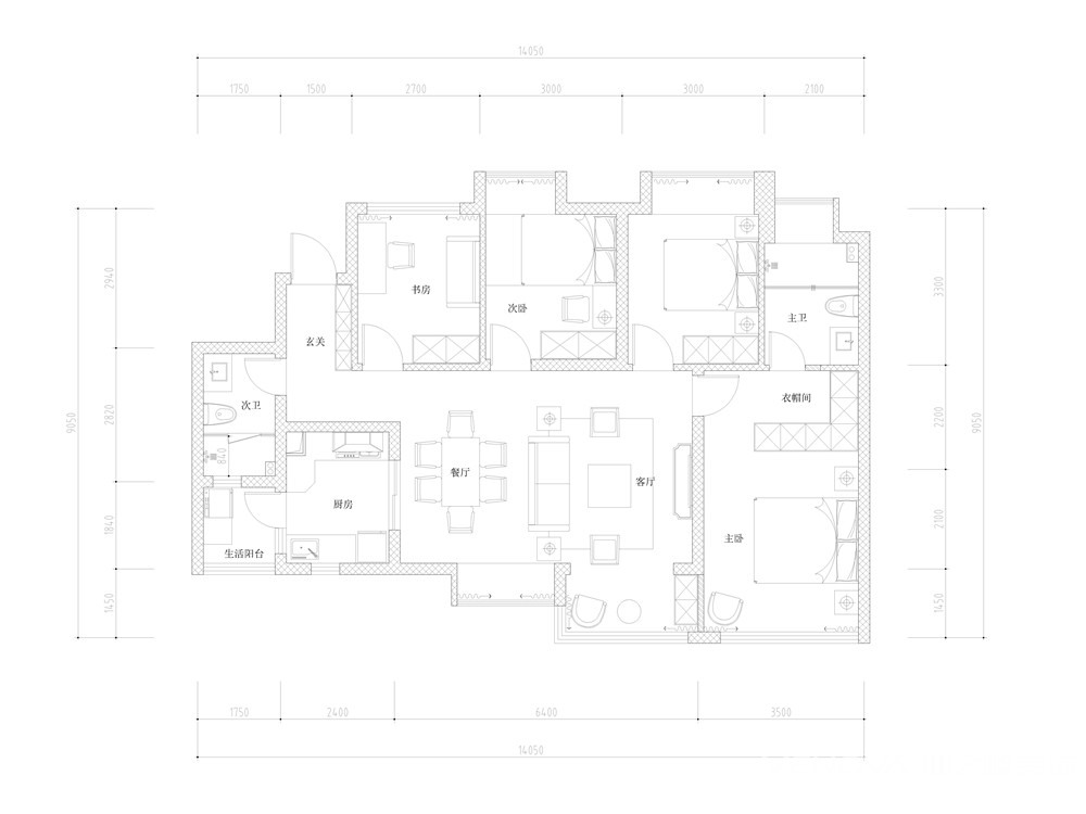
小区:首创天禧68# 面积:124㎡ 户型:四居 风格:现代简约风格
设计说明
本案以美式风格为主题,空间改造:主卧把阳台纳入扩大主卧空间,设计衣帽间,增加主卧室储物功能。简单的线条和几何图案,与局部的相对繁琐形成鲜明对比,带给我们不一样的视觉及触觉享受。色彩上以经典的米黄色与白色为主导,局部大理石、硬包、壁纸、木饰面、实木线条等材料的贯穿融合,既突显空间的凹凸感,又表现出现代时尚和优雅高贵,符合中国人的审美价值。
户型图

卧室

客厅


餐厅





京公安网备11010502040911