96㎡三居现代简约风格天地源曲江香都
发布时间:
2020年06月16日
小区:天地源曲江香都 面积:96㎡ 户型:三居 风格:现代简约风格
设计说明
本套方案的风格是现代简约风格,业主是一家两口,马上就有小宝宝了。男主人从事业教育工作女主人热爱生活。有自己成熟的审美与完整而成熟的人生观,对生活品质要求极高。现代轻奢风格体现了业主夫妻的品味与态度,是一种时尚奢华,却不会轻浮的高级风格。
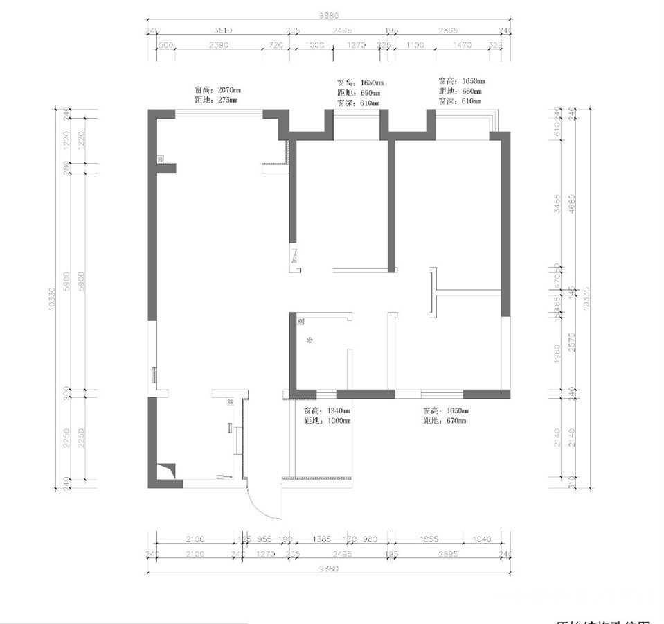
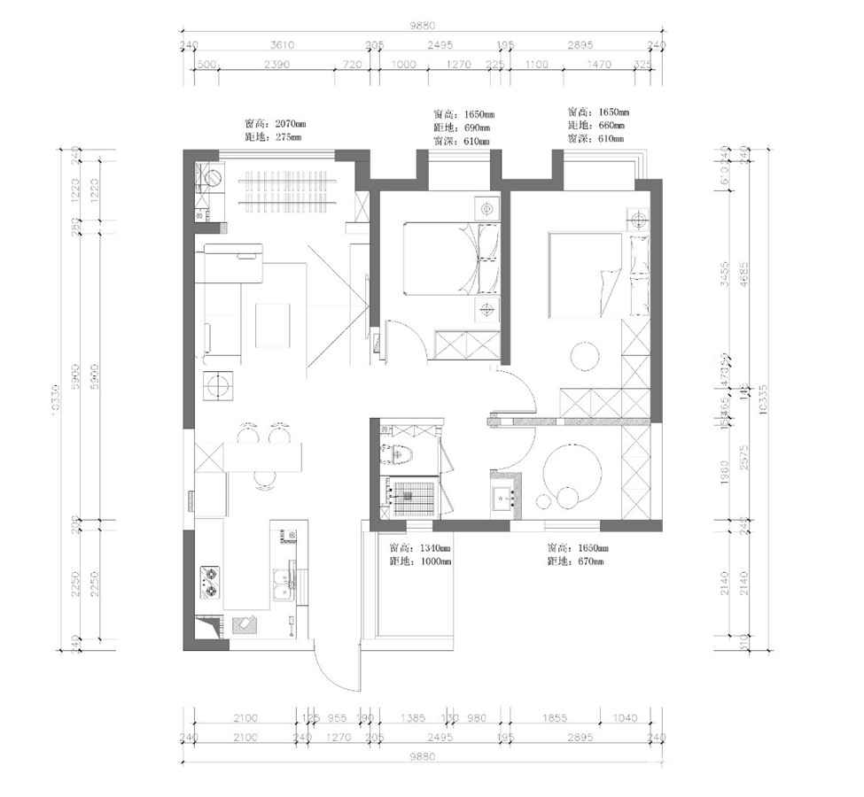
本户96平,户型结构完整,主卧空间利用率低,三间卧室只有一个卫生间,这样给了设计师更多的发挥空间。设计师将主卧空间打通扩大并加大了卫生间的空间,使用起来比较舒服,并做了干湿分离。全房选择了大面积的灰色调,沉稳又不失奢华。
户型图

卧室


客厅








京公安网备11010502040911