120㎡三居现代简约风格大华公园世家
发布时间:
2020年06月16日
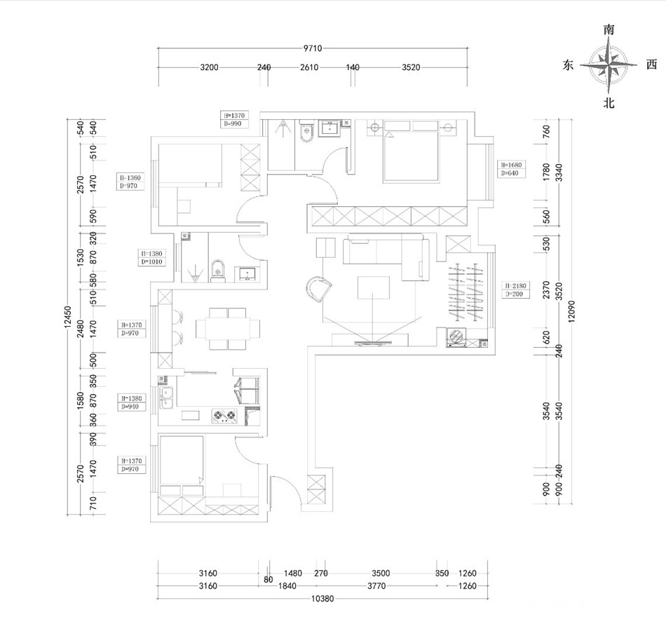
小区:大华公园世家 面积:120㎡ 户型:三居 风格:现代简约风格
设计说明
本套方案的风格是现代轻奢风格,业主是一家三口,男主人从事业教育工作女主人热爱生活。有自己成熟的审美与完整而成熟的人生观,对生活品质要求极高。现代轻奢风格体现了业主夫妻的品味与态度,是一种时尚奢华,却不会轻浮的高级风格。
本户120平,户型结构完整,给了设计师更多的发挥空间。设计师全房选择了灰色的木地板通铺,以简约风格为主调,将实用性发挥到极致,使人在空间中得到精神和身体上的放松,并紧跟着时尚的步伐。
户型图

儿童房

客厅



卧室

餐厅





京公安网备11010502040911