112㎡三居现代简约风格远洋万和城
发布时间:
2020年06月11日
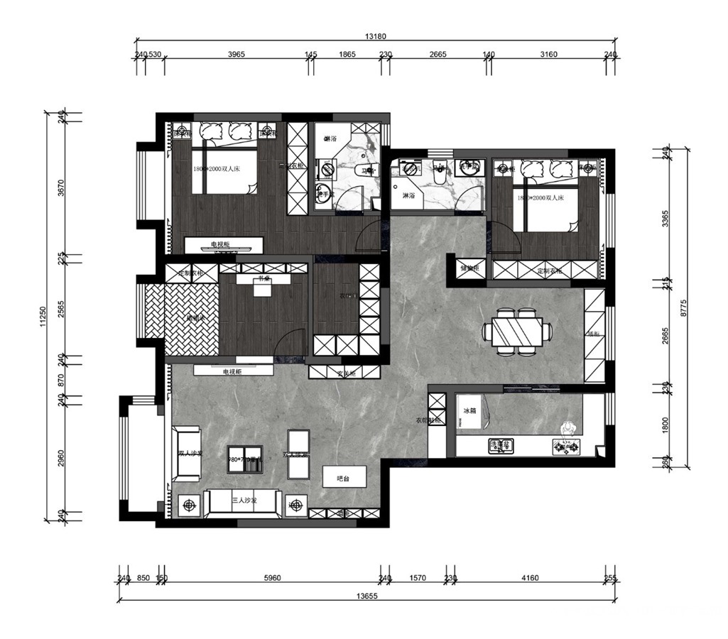
小区:远洋万和城 面积:112㎡ 户型:三居 风格:现代简约风格
设计说明
现代简约风格比较注重空间的使用功能,废弃繁琐的装饰,室内布置也会按功能区分的原则进行,家具色彩造型非常潮流,以个性化、简单化装修方式打造舒适家居。现代简约风格会根据整个装修综合考虑,在墙面、吊顶占据视觉比重较大的空间留白,以减少视觉负担。
户型图

客厅




卧室



餐厅





京公安网备11010502040911