124㎡三居现代简约风格众美绿都
发布时间:
2020年06月03日
小区:众美绿都 面积:124㎡ 户型:三居 风格:现代简约风格
设计说明
本方案为简约风格,有的人喜欢暖色,有的人心悦冷色,本案的小两口就偏爱极简黑白灰,在整个方案中先以冷色调进行铺垫,软装上运用暖咖色润色,一冷一暖,相衬相映,提升家居生活空间品质。
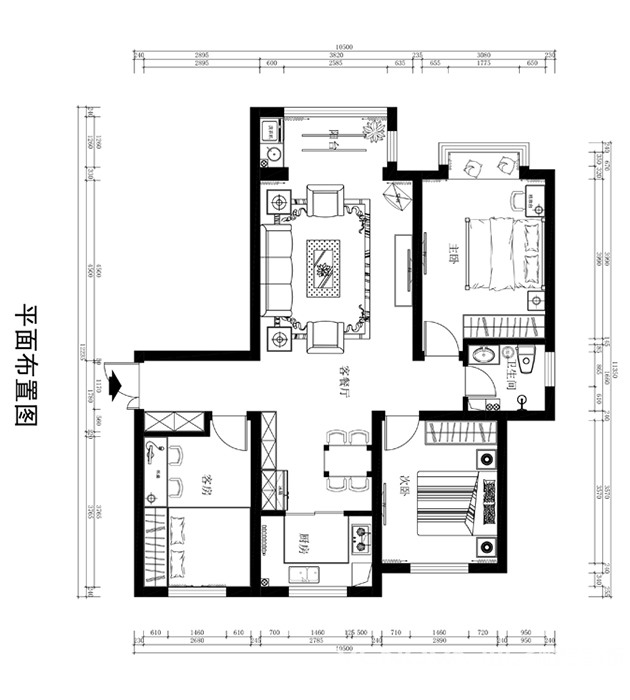
户型图

客厅




餐厅


本方案为简约风格,有的人喜欢暖色,有的人心悦冷色,本案的小两口就偏爱极简黑白灰,在整个方案中先以冷色调进行铺垫,软装上运用暖咖色润色,一冷一暖,相衬相映,提升家居生活空间品质。






