176㎡四居现代简约风格东南智汇城
发布时间:
2020年06月03日
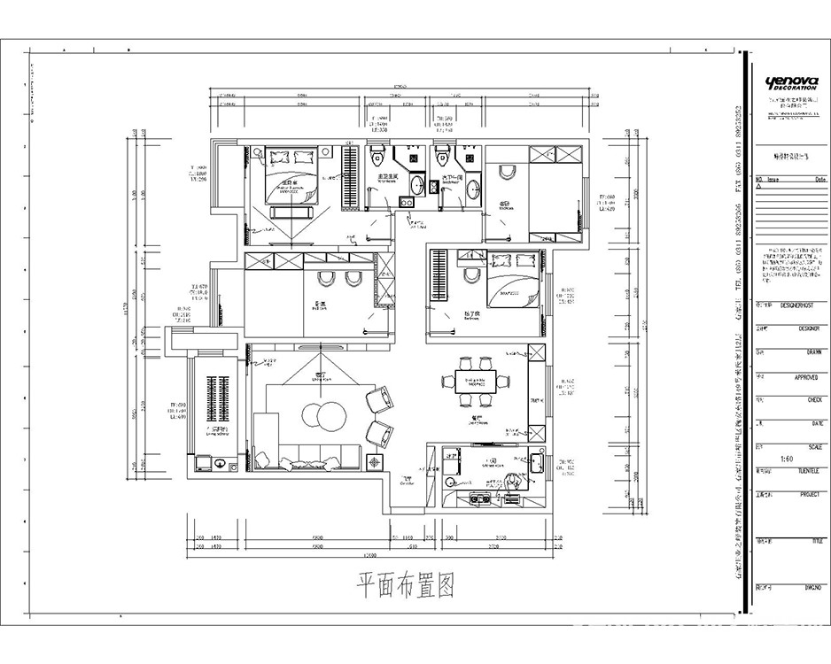
小区:东南智汇城 面积:176㎡ 户型:四居 风格:现代简约风格
设计说明
本套方案为现代简约风格,通过空间布局上的合理运用,既能在生活上满足客户的需求,又传达出现代简约风格独特的灵魂。用利落的线条完美的材质和高档的家具赋予了空间生命力。亮色的点缀和搭配能产生别样的美,为家居带来舒适和安逸。
户型图

餐厅


儿童房


客厅




玄关


卧室









阳台





京公安网备11010502040911