178㎡三居现代简约风格荣盛华府
发布时间:
2020年05月21日
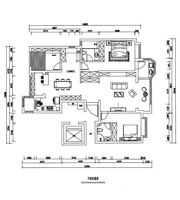
小区:荣盛华府 面积:178㎡ 户型:三居 风格:现代简约风格
设计说明
注重居住功能的最大体现,追寻内心之宁静与生活之本质。以此为设计出发点本案在平面布置上,强调开阔简洁,色调氛围,静谧素雅,自然质朴的人文气息,愈经时间考验则愈能彰显生活本质之美
户型图

书房

餐厅

卧室

客厅


玄关

注重居住功能的最大体现,追寻内心之宁静与生活之本质。以此为设计出发点本案在平面布置上,强调开阔简洁,色调氛围,静谧素雅,自然质朴的人文气息,愈经时间考验则愈能彰显生活本质之美






