110㎡三居现代简约风格荣华水岸新城
                  发布时间:
                  2020年05月08日
                
 小区:荣华水岸新城 面积:110㎡ 户型:三居 风格:现代简约风格
设计说明
 本案装修案例为平层三居两卫,该房子主要是业主夫妇及孩子居住。女主人比较喜欢大气的简约风格。并对储物空间有一定要求。
客厅采用了经典的护墙板元素的墙面进行搭配。再配白色与高级灰的家具使整个空间更加沉稳,有内涵。
餐厅配上六人桌,能使得空间更加具有纵深感,使得空间从视觉上显示的更加宽敞,让整个餐厅更加富有情调。
主卧用衣柜做成了开放式的衣帽间,巧妙地将主卧与主卫分隔。
次卧的设计颜色以部分亮色点缀比如黄色的窗帘,使空间变得更加温馨。
搭配简约的瓷砖以及采用玻璃隔断,让功能区划分的更加明显也显得很大方。
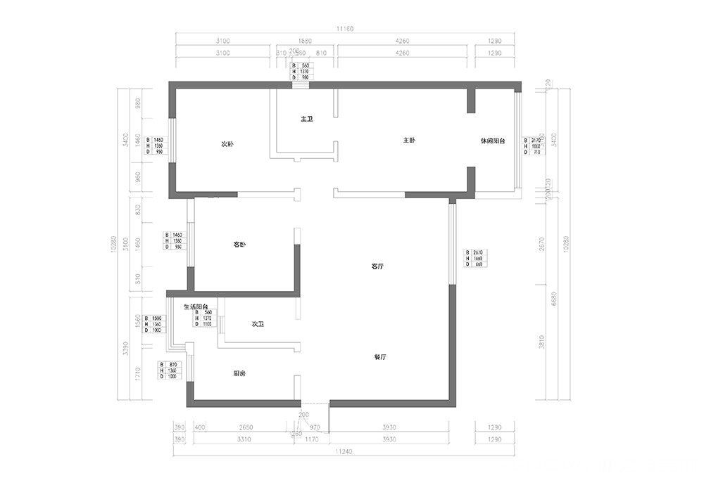
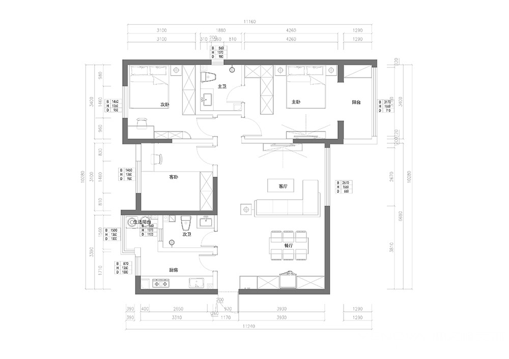
户型图
 
餐厅
 
客厅
 




卧室
 


儿童房
 
卫生间
 
阳台
 

 


京公安网备11010502040911