198㎡四居现代简约风格紫薇曲江意境
发布时间:
2020年04月17日
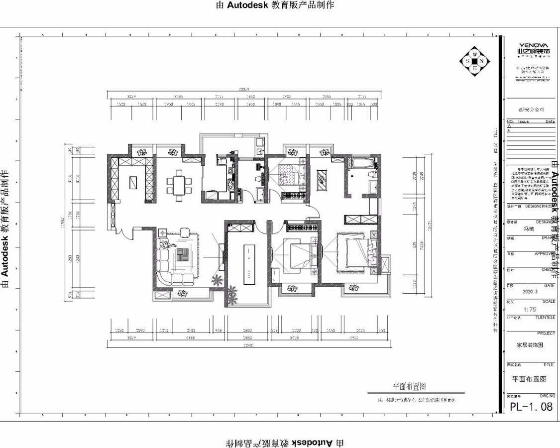
小区:紫薇曲江意境 面积:198㎡ 户型:四居 风格:现代简约风格
设计说明
本套装修案例为平层,四室两厅一厨两卫。原始结构优缺点:南北通透,采光特别好。餐厅的改造是难点。进门鞋柜太小,所以把进门空间打造成衣帽间,增加储物功能。客厅:电视墙浅色护墙板和神色壁纸相搭配再加上氛围灯,整个空间大部分采用神色,显示出业主职场精英那种精炼。餐厅:桌子与椅子的腿都是细细的金属,还是这么的简单,与客厅相呼应。主卧:灰色的壁纸给人一种水泥墙的质感,回归工业,与轻奢的家具原来是如此的搭配。
户型图

卧室


厨房

书房

客厅



餐厅

衣帽间





京公安网备11010502040911