110㎡三居现代简约风格南郭新城
发布时间:
2020年03月22日
小区:南郭新城 面积:110㎡ 户型:三居 风格:现代简约风格
设计说明
本案例针对业主需求,设计师为其甄选了欧式风格,古典欧式风格别墅装修最大的特点是在造型上极其讲究,给人的感觉端庄典雅、高贵华丽,具有浓厚的文化气息。在家具选配上,一般采用宽大精美的家具,配以精致的雕刻,整体营造出一种华丽、高贵、温馨的感觉。
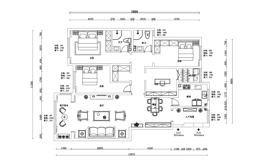
户型图

儿童房

客厅




衣帽间

卧室





京公安网备11010502040911