130㎡三居现代简约风格汇君城
发布时间:
2020年01月08日
小区:汇君城 面积:130㎡ 户型:三居 风格:现代简约风格
设计说明
本方案是围绕现代风格为主题,现代风格是以简约为主的装修风格,简约并不是缺乏设计要素,它是一种更高层次的创作境界。本案是在设计上更加强调功能,强调结构和形式的完整,更追求材料、技术、空间的表现深度与准确。
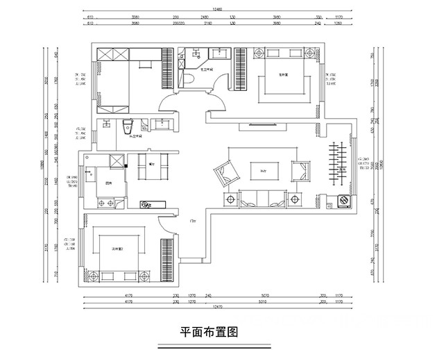
户型图

客厅




餐厅

玄关

本方案是围绕现代风格为主题,现代风格是以简约为主的装修风格,简约并不是缺乏设计要素,它是一种更高层次的创作境界。本案是在设计上更加强调功能,强调结构和形式的完整,更追求材料、技术、空间的表现深度与准确。






