150㎡三居现代简约风格南城印象
发布时间:
2020年01月04日
小区:南城印象 面积:150㎡ 户型:三居 风格:现代简约风格
设计说明
现代人对生活品质极致考究,更加关注内在的精神世界及需求,品质、舒适、现代化、国际化,以及独特个性成为年轻阶层追求的空间设计诉求。 本案运用高科技新材料和元素来表达高品质又简 单舒适的生活态度,使得家居空间更具表演性。
皮质家私搭配大量的金属元素、利落线条,再加上一些闪亮的装饰元素作为点缀,轻松演绎轻奢之美,缔造出让人无限回味的空间。
回归初心,返璞归真。白色和绿色相互衬托,一个纯净,一个自然,简单又有趣。
棕色背景墙和台灯的设计打造出主卧高端大气的空间调性,给予居住者内心安定的力量。
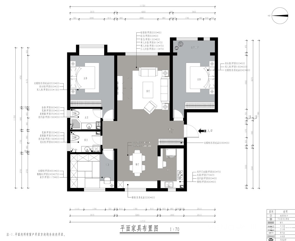
户型图

卧室


玄关

书房


卫生间


客厅





餐厅


厨房





京公安网备11010502040911