180㎡三居现代简约风格金色堤岸·云境
发布时间:
2020年01月04日
小区:金色堤岸·云境 面积:180㎡ 户型:三居 风格:现代简约风格
设计说明
现代简约风格追求的是空间的实用性与灵活性,空间的划分不一定要隔墙,隔断也可以是室内很好的一种装饰,而且这样的空间划分方法更具灵活性、兼容性和流动性。
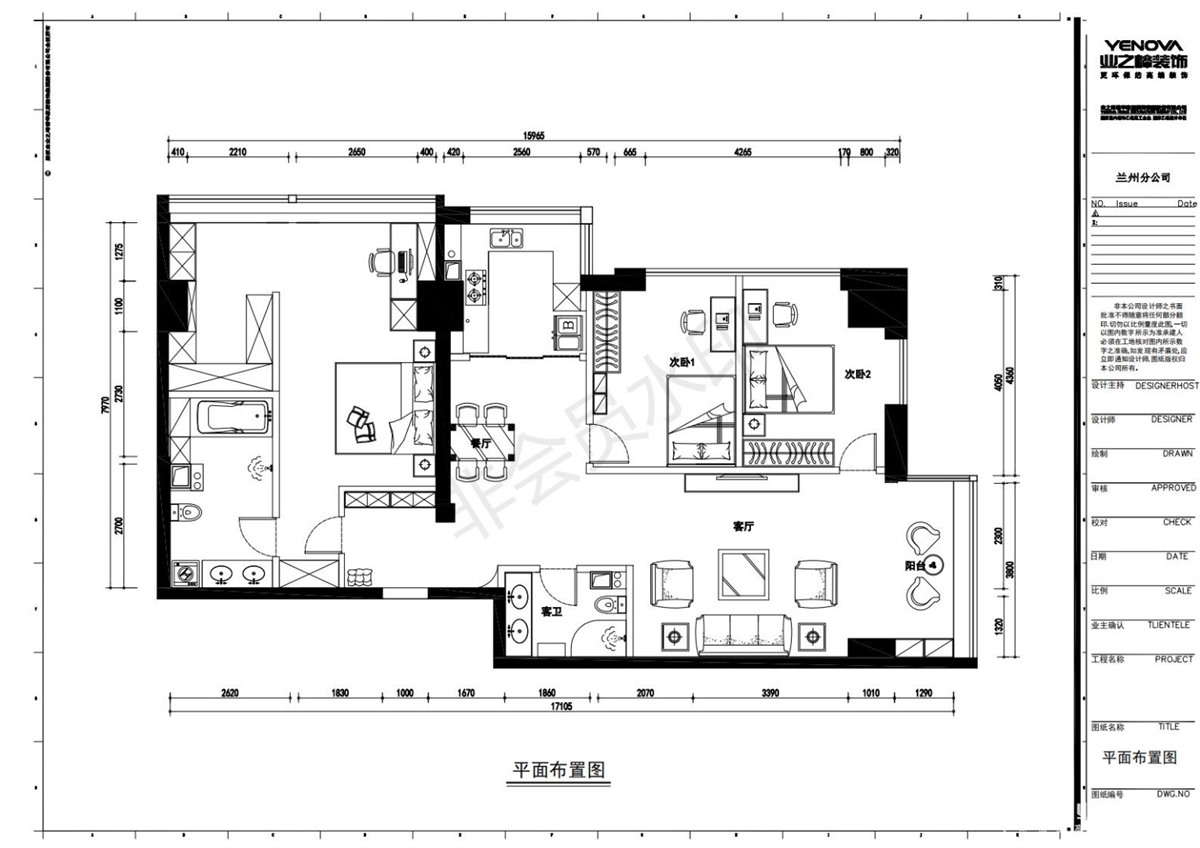
户型图

卧室


客厅



书房

玄关

现代简约风格追求的是空间的实用性与灵活性,空间的划分不一定要隔墙,隔断也可以是室内很好的一种装饰,而且这样的空间划分方法更具灵活性、兼容性和流动性。







