136㎡三居现代简约风格香都东岸
发布时间:
2019年11月22日
小区:香都东岸 面积:136㎡ 户型:三居 风格:现代简约风格
设计说明
本案的设计难点在于餐厅背景墙与电视背景墙面不在一个平面,后期地面造型和空间的规整性不好把控,空间异形需要合理利用此空间避免造成空间浪费。
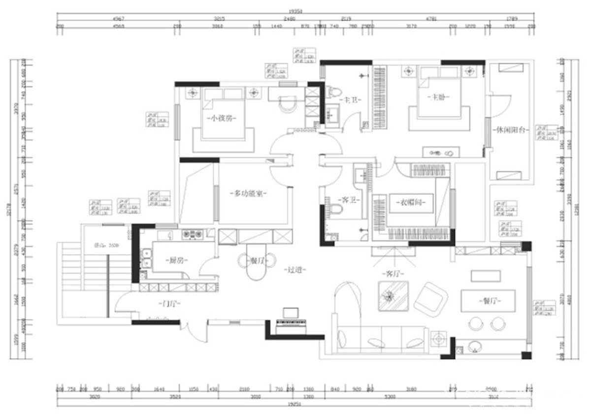
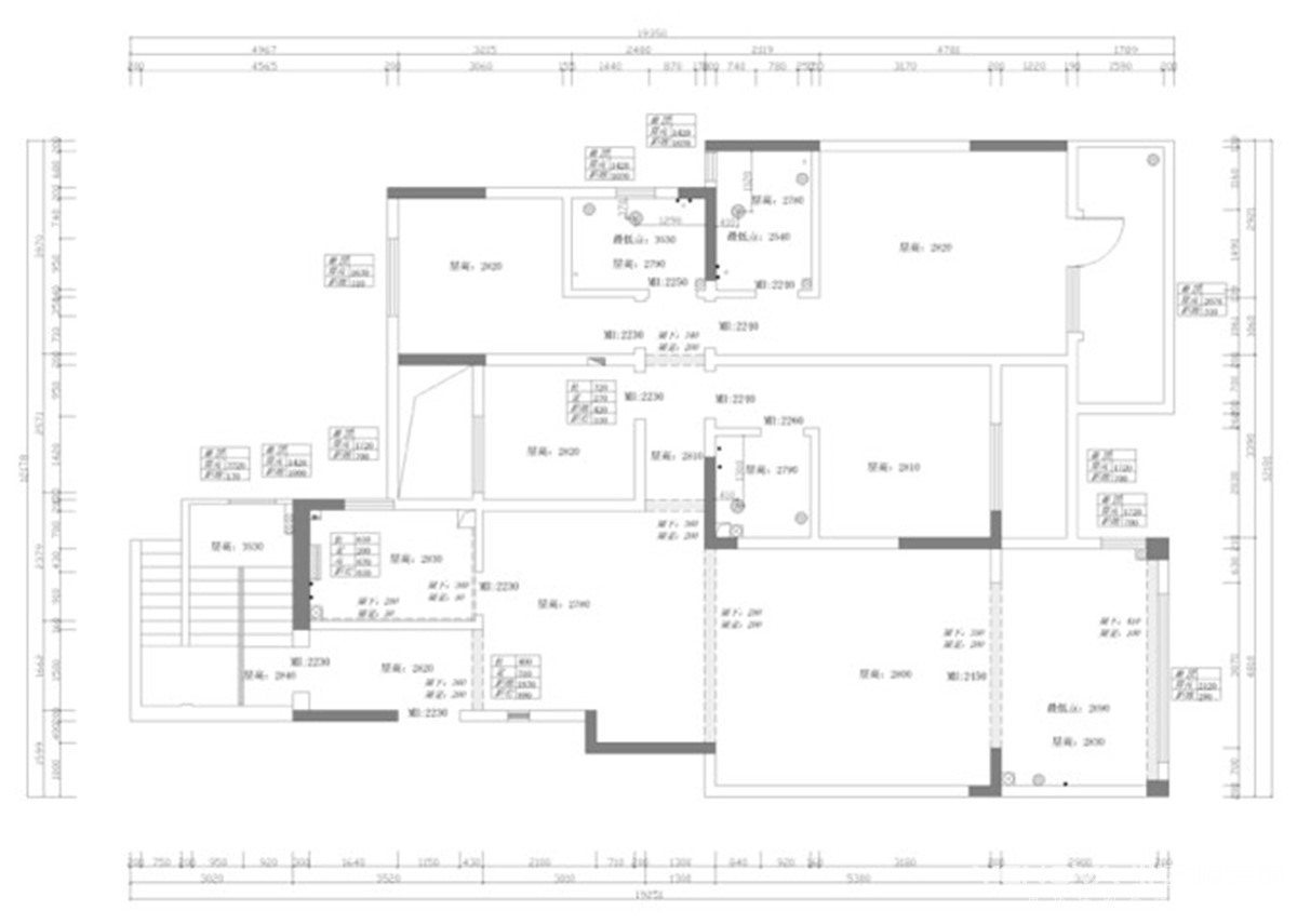
户型图

玄关

客厅




餐厅

卧室


本案的设计难点在于餐厅背景墙与电视背景墙面不在一个平面,后期地面造型和空间的规整性不好把控,空间异形需要合理利用此空间避免造成空间浪费。








