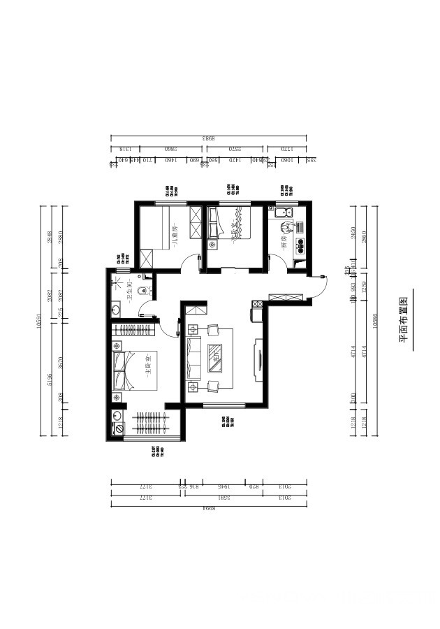
118㎡三居现代简约风格熙悦园
发布时间:
2019年11月22日
小区:熙悦园 面积:118㎡ 户型:三居 风格:现代简约风格
设计说明
根据业主的要求改两室为三室,此方案的风格倾向定位为现代简约风格。但简约不等于简单,一样可以丰富多彩。室内大面积采用浅色墙体,格调高雅,造型简朴优美,给人以安静祥和的氛围。本案强调功能性设计,注重实用;吊顶采用石膏素线条描边,简约流畅,室内采用亮黄色和蓝色装饰点缀色彩对比强烈,大胆灵活,室内丰富并不单一;给人以眼前一亮的感觉。
户型图

客厅









京公安网备11010502040911