132㎡四居现代简约风格湖岛世家
发布时间:
2019年11月14日
小区:湖岛世家 面积:132㎡ 户型:四居 风格:现代简约风格
设计说明
设计理念:本方案采用现代简约风格,简约风格是近几年比较流行的一种风格,追求时尚潮流的年轻业主十分注重室内空间的布局与实用功能的结合。
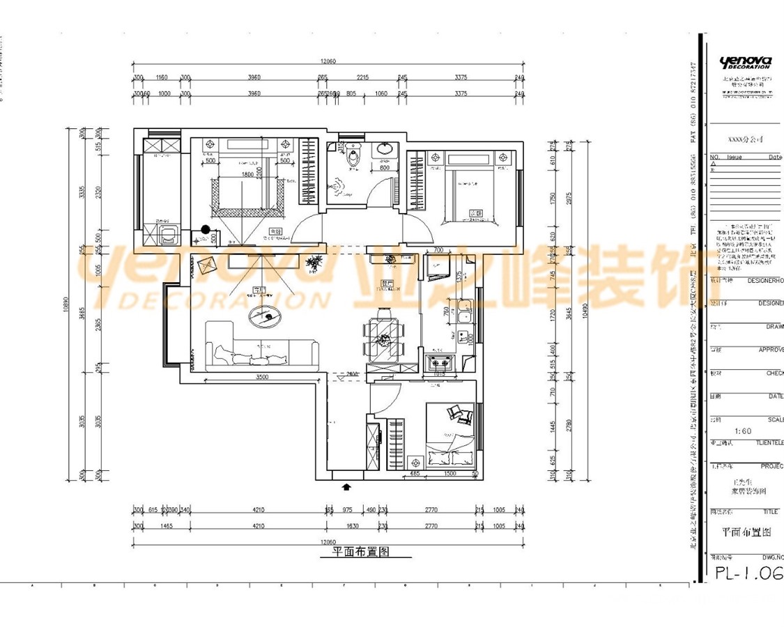
户型图

卧室

客厅




设计理念:本方案采用现代简约风格,简约风格是近几年比较流行的一种风格,追求时尚潮流的年轻业主十分注重室内空间的布局与实用功能的结合。





