97㎡三居现代简约风格保利心语花园
发布时间:
2019年11月13日
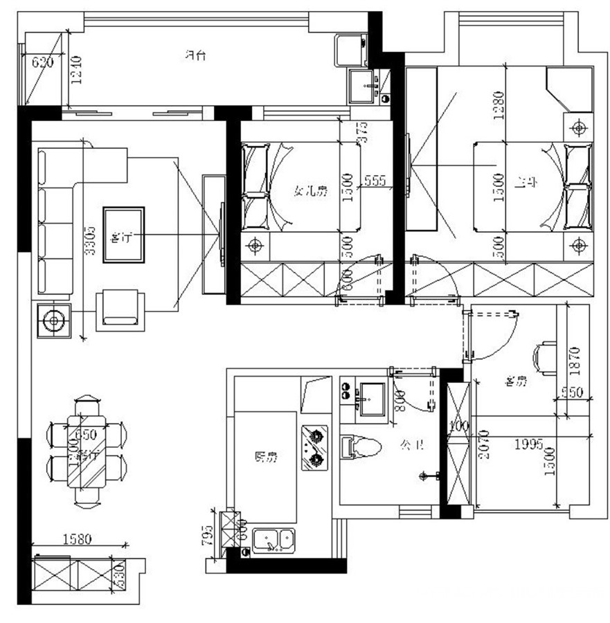
小区:保利心语花园 面积:97㎡ 户型:三居 风格:现代简约风格
设计说明
咨询电话:0791-86296016这个房子会业主买来给女儿的房子,房子想要一个简约的感觉,所以我采用一个温暖的颜色营造家庭的气氛,家里是老人,父母暂时都会在房子里居住,所以现在按照老人的生活习惯设计,整体感觉以温馨舒适为主。
户型图

客厅




餐厅






京公安网备11010502040911