140㎡复式新中式风格天朗蔚蓝东庭
发布时间:
2019年10月18日
小区:天朗蔚蓝东庭 面积:140㎡ 户型:复式 风格:新中式风格
设计说明
本案为叔叔阿姨为孙子装修房子,整体风格以耐看的中式为主。
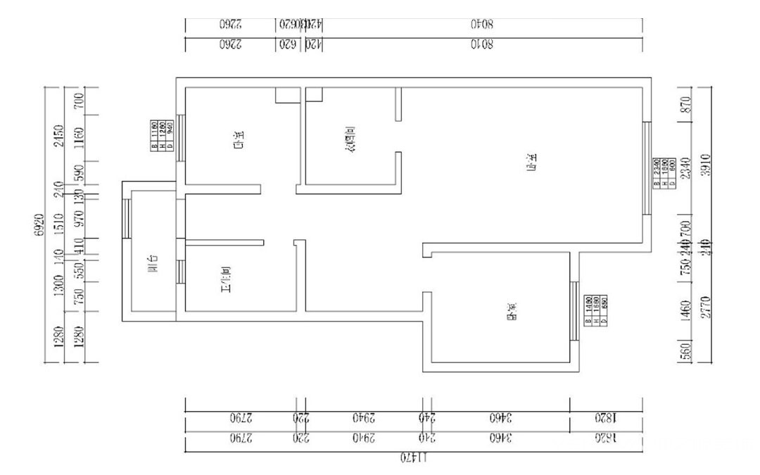
原始结构优缺点:南北通透,属于小复式。四个卧室,配以两个卫生间,方便实用,阳台隔在外面,可以拆除增加使用面积。
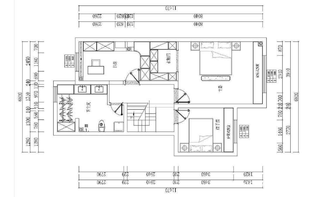
改造方案:二楼主卫墙体改造增加书房的面积,增加衣帽间的设计,以增加储物功能。
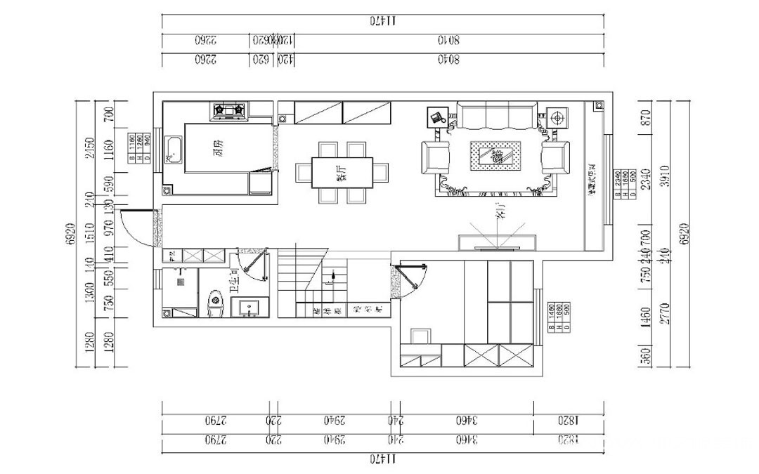
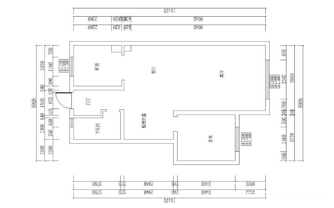
户型图

卧室


儿童房

客厅





卫生间

书房

餐厅





京公安网备11010502040911