126㎡三居新中式风格开元·第一城
发布时间:
2019年10月18日
小区:开元·第一城 面积:126㎡ 户型:三居 风格:新中式风格
设计说明
于屋主一家三口来说,饱含文化底蕴的新中式缓冲了快节奏生活带来的焦虑感,也让新家充满了归属感,宁静祥和的古典氛围让人不自觉慢下来,思考生活,感受时间流逝。
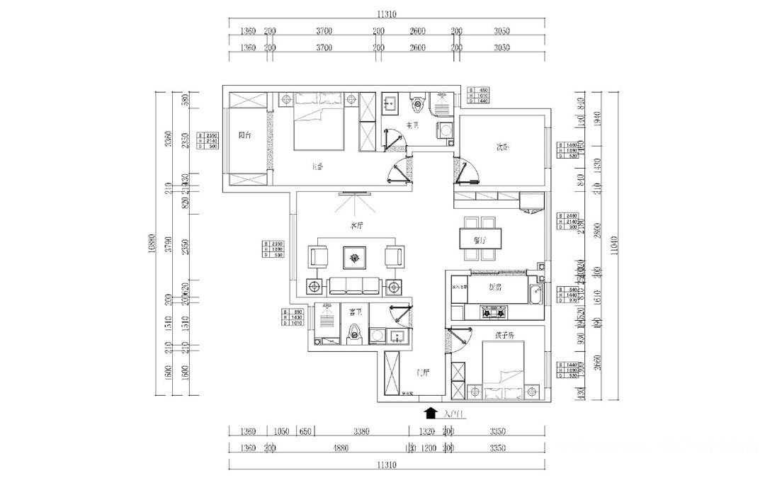
原始结构优缺点:房屋南北通透,客厅内嵌,采光比较暗,门厅位置浪费空间比较大,餐厅位置比较狭小。
改造方案:客厅增加灯光源,门厅增加鞋柜的摆放,增加储物空间,餐厅阳台砸掉,增加餐厅空间。
户型图

儿童房


卫生间


卧室

客厅



玄关

餐厅





京公安网备11010502040911