98㎡三居现代简约风格望江橡树林
发布时间:
2019年09月24日
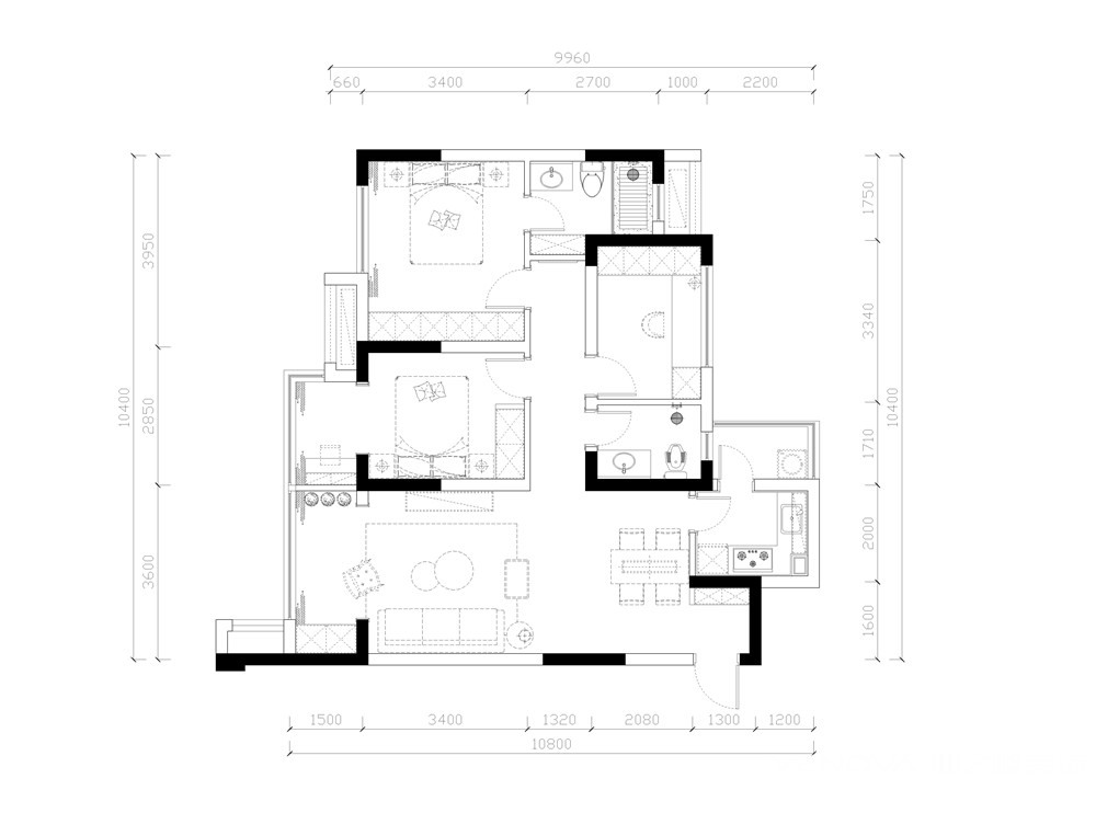
小区:望江橡树林 面积:98㎡ 户型:三居 风格:现代简约风格
设计说明
本案业主是一对年轻90后夫妇,业主平时都在忙碌的上班,不是不喜欢繁复的东西,喜欢简简单单的生活节奏。前期和他们做了细致的几次沟通之后,就把方案和风格给定格下来了。
整体以现代风格为主,客餐厅主色调大面积采用素色,地砖配以灰色系,让整个空间显现出稳重感。门和踢脚线采用黑色细框和顶上的两根直线灯带有起到整个空间的一个拉伸感,达成了空间上的一种平衡。软装上采用一些彩色来点缀,让整个空间有活力和舒适感。整体简单大方,空间装饰品较少,给人的感觉比较素净。
户型图

客厅


餐厅

卧室





京公安网备11010502040911