111㎡三居现代简约风格碧桂园繁华里
发布时间:
2019年09月23日
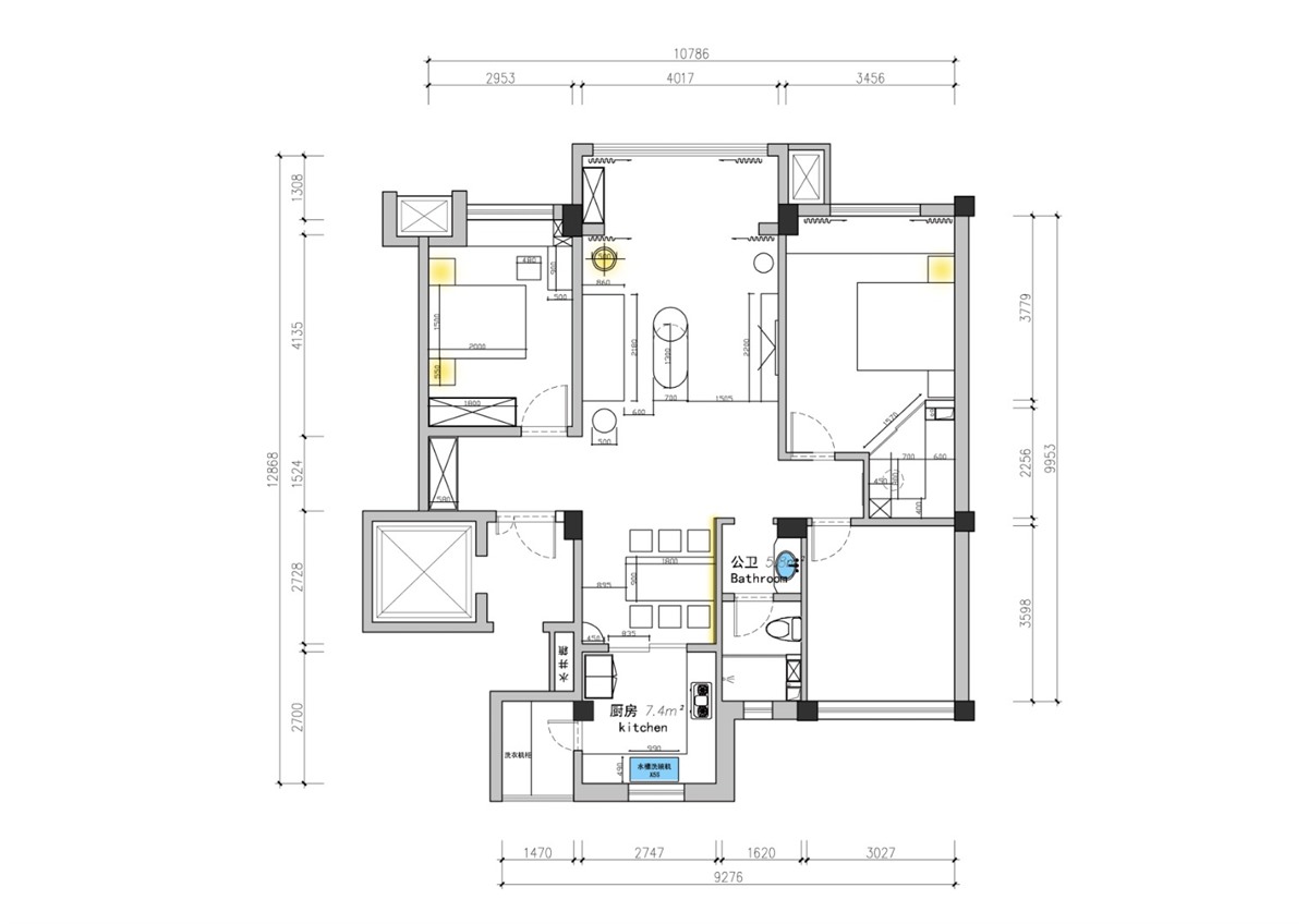
小区:碧桂园繁华里 面积:111㎡ 户型:三居 风格:现代简约风格
设计说明
空间整体以灰色为主色调,将轻奢与现代融为一体。灰色调中融入咖色系作为铺垫,金属的质感,柔和的灯光,正是这种刚与柔的融合,让空间视觉效果达既饱含张力又平衡舒适。那些由内而外散发出来的气质美感更是在不经意间击中心底最柔软的角落。随着生活质量不断提高,人们对赖以生存环境开始重新考虑,在喧嚣城市的中央,空中花园是每个人的梦想,坐在露台上,蓝天和白云即刻拥有,露台上的这片天空,谁能不爱?更是体现出舒心的家居品质。
户型图

卫生间

客厅




餐厅





京公安网备11010502040911