150㎡三居现代简约风格普罗旺世龙之梦
发布时间:
2019年09月21日
小区:普罗旺世龙之梦 面积:150㎡ 户型:三居 风格:现代简约风格
设计说明
新中式具有中国传统风格文化意义在当前时代背景下的演绎,是对中国当代文化充分理解基础上的当代设计。新中式是传承传统中式风格的精髓,通过与现代潮流的对话碰撞而产生的创新。新中式风格在设计上延续了明清时期家居配饰理念,提炼了其中经典元素并加以简化和丰富,在家具形态上更加简洁清秀,同时又打破了传统中式空间布局中等级、尊卑等文化思想,空间配色上也更为轻松自然。
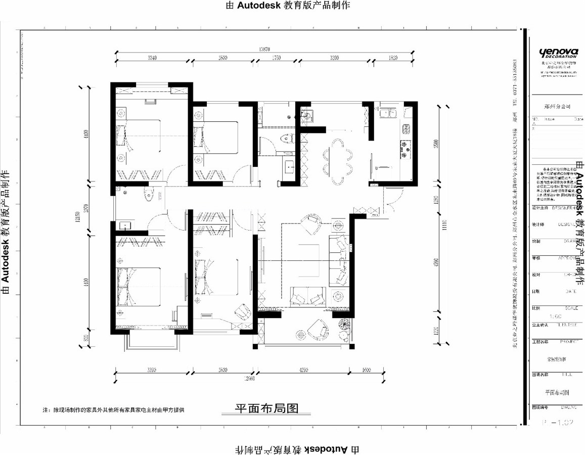
户型图

客厅





餐厅

卧室

玄关





京公安网备11010502040911