139㎡三居现代简约风格龙湖锦艺城
                  发布时间:
                  2019年08月07日
                
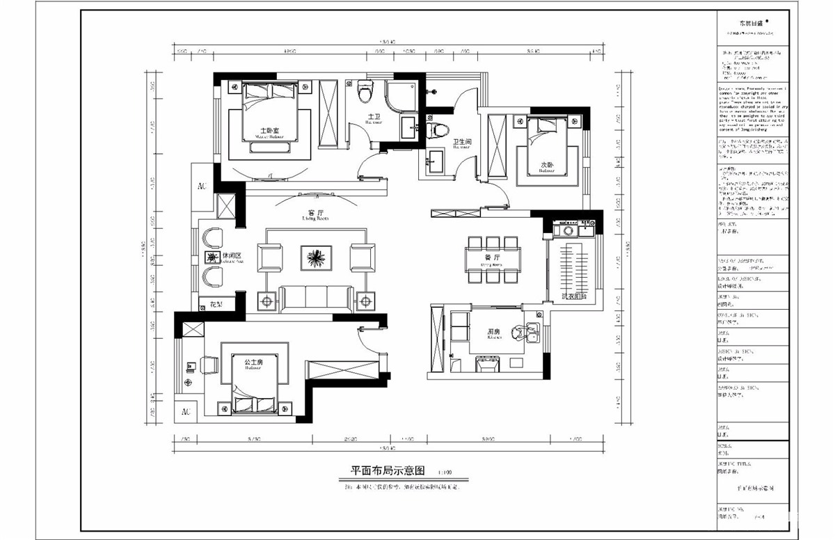
 小区:龙湖锦艺城 面积:139㎡ 户型:三居 风格:现代简约风格
设计说明
 龙湖锦艺城
风格:极简轻奢
户型:三居室
面积:139㎡
设计师:许良
轻奢其形,张扬有度
 以雅致的灵韵谱写空间的曲调,以绘饰的精巧修成一幅艺术画作,融入轻奢色彩,礼赞生活之格调。这是一个现代雅奢的品质软装设计,融入对生活的万千宠爱与想象,服务于寻求品质生活的现代都市菁英人群。
户型图 
餐厅
 
卧室
 

客厅
 





 
 


 京公安网备11010502040911
京公安网备11010502040911