109㎡三居现代简约风格中铁兴安府
发布时间:
2019年07月22日
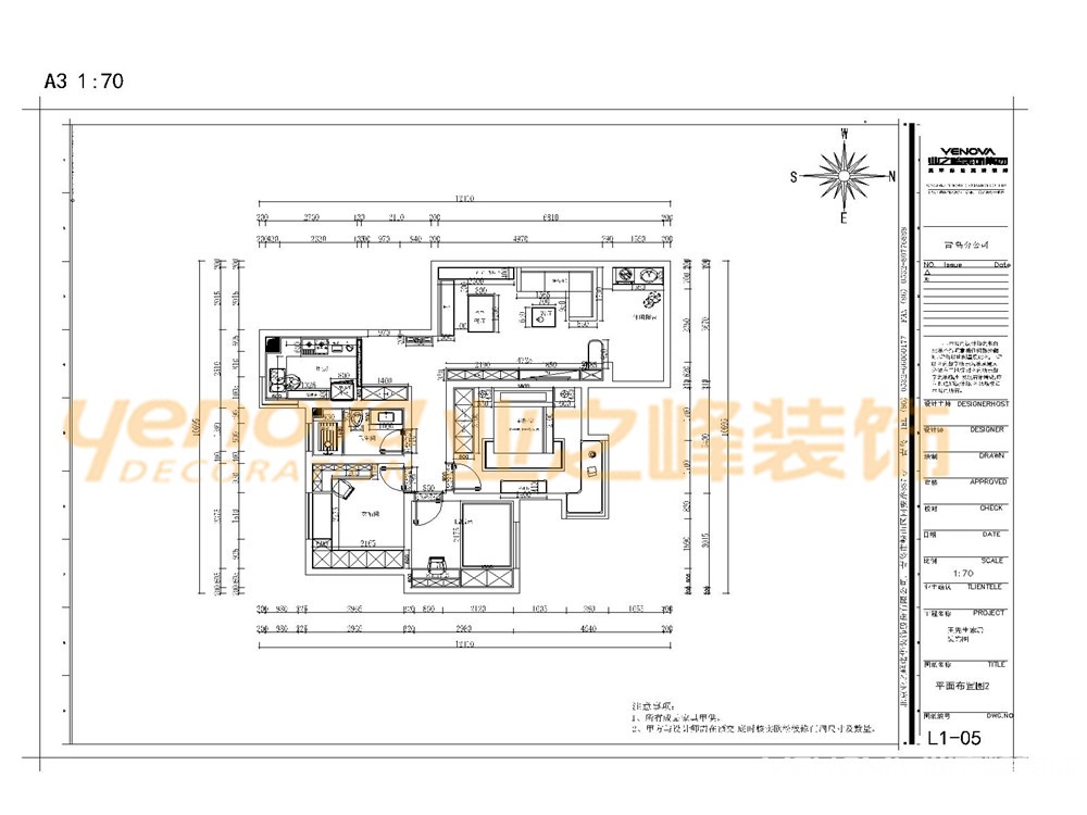
小区:中铁兴安府 面积:109㎡ 户型:三居 风格:现代简约风格
设计说明
现代简约风格的装修设计是以简约简单的造型,无论从硬装还是家具上看,都是非常简单朴实的家具,都能体现出现代简约的风格,在设计时,没有太多的装潢和太花哨的家具,造型方面多采用几何结构,给人舒适感。现代简约的家具强调实用主义,线条简单,会在空间稍微布置一些创意性的饰品,不仅保证了整体的协调性而且增加了整个空间的时尚感和设计感。
户型图

客厅



餐厅

书房

卧室





京公安网备11010502040911