142㎡三居梧桐苑
发布时间:
2019年07月20日
小区:梧桐苑 面积:142㎡ 户型:三居 风格:
设计说明
如果将整个居室的室内设计比喻成一部耐人寻味的电影的话,那么家居设计就是这电影中时时出现在关键时刻的电影配乐,或者说插曲。电影插曲总在最打动人心的时刻出现,有着画龙点睛的作用。家居饰品也一样,它点染居室的风格,烘托居室的格调,平衡居室内色彩、图案、明暗、大小等多方关系,是室内装修中不可或缺的重要组成部分。
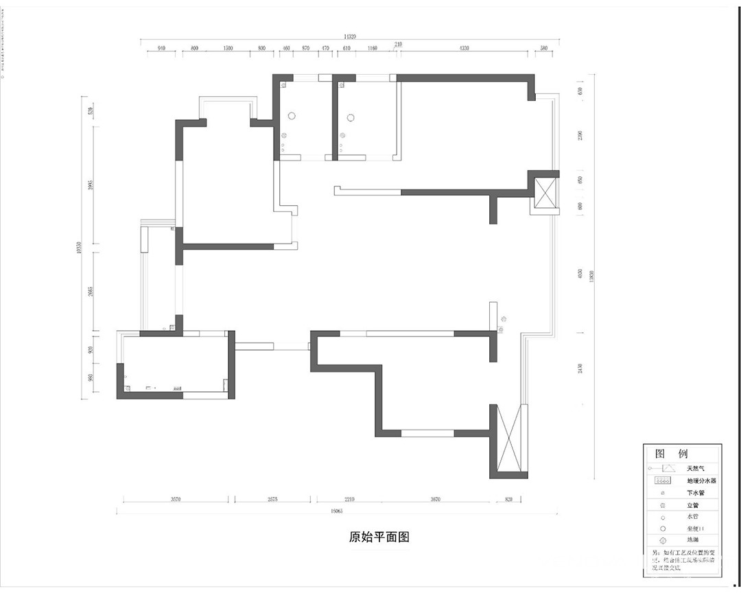
户型图

卧室

餐厅

客厅








京公安网备11010502040911