189㎡四居现代简约风格蔚蓝花城
发布时间:
2019年07月20日
小区:蔚蓝花城 面积:189㎡ 户型:四居 风格:现代简约风格
设计说明
以简洁明快的设计风格为主调,简洁和实用是现代简约风格的基本特点。而简约风格不仅注重居室的实用性,而且还体现出了现代社会生活的精致与个性,符合现代人的生活品位。
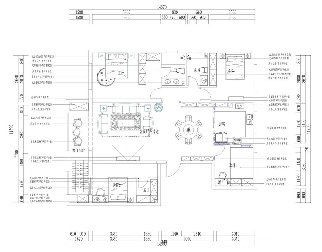
A.厨房空间过小,拆除厨房阳台墙体,需要合理规划空间,增大厨房的使用空间。
B.卧室阳台与客厅阳台融为一体,后期需要考虑是否封闭将两个空间分割开。
C.次卧门洞不合理,后期考虑将门洞移动,需要结合客户需求合理规划利用空间。
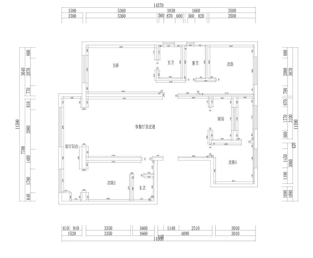
户型图

餐厅

客厅



卧室





京公安网备11010502040911