180㎡四居现代简约风格自建别墅
发布时间:
2019年07月14日
小区:自建别墅 面积:180㎡ 户型:四居 风格:现代简约风格
设计说明
风格倾向定位为现代风格,以简洁明快的设计风格为主调。简洁和实用是现代简约风格的基本特点。现代风格不仅注重居室的实用性,而且还体现出了现代社会生活的精致与个性,符合现代人的生活品位。全面考虑,在总体布局上方面尽量满足业主生活的需求。适度的装饰是家居不缺乏时代气息,使人在在空间得到精神和身体的放松。
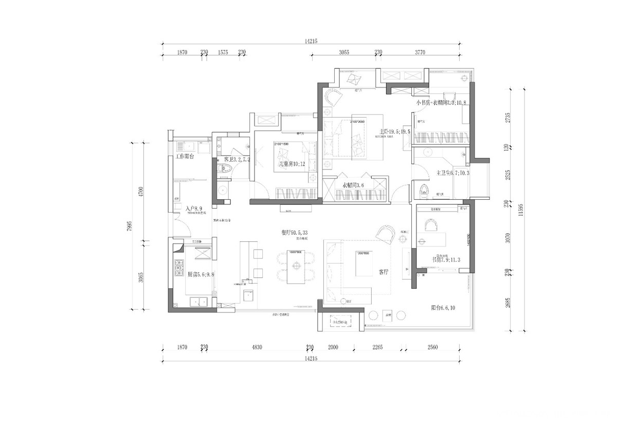
户型图

客厅



餐厅





京公安网备11010502040911