010-84934479
扫码快速拨号 >
扫码快速拨号

105㎡三居现代简约风格东方希望天祥广场

发布时间: 2019年07月14日
小区:东方希望天祥广场 面积:105㎡ 户型:三居 风格:现代简约风格
设计说明

此计方案的业主,风格定位为现代风格。简约是一种风格,是一种简化布局,简化色彩,简化线条,简化元素的风格。从视觉的角度看,这种设计是平淡的,让居住者的心灵到达最原始的地方。从内容的角度看,它又是焦点鲜明的,使人一接触就被那种空灵的气质吸引,给人一种心驰神往的震撼。


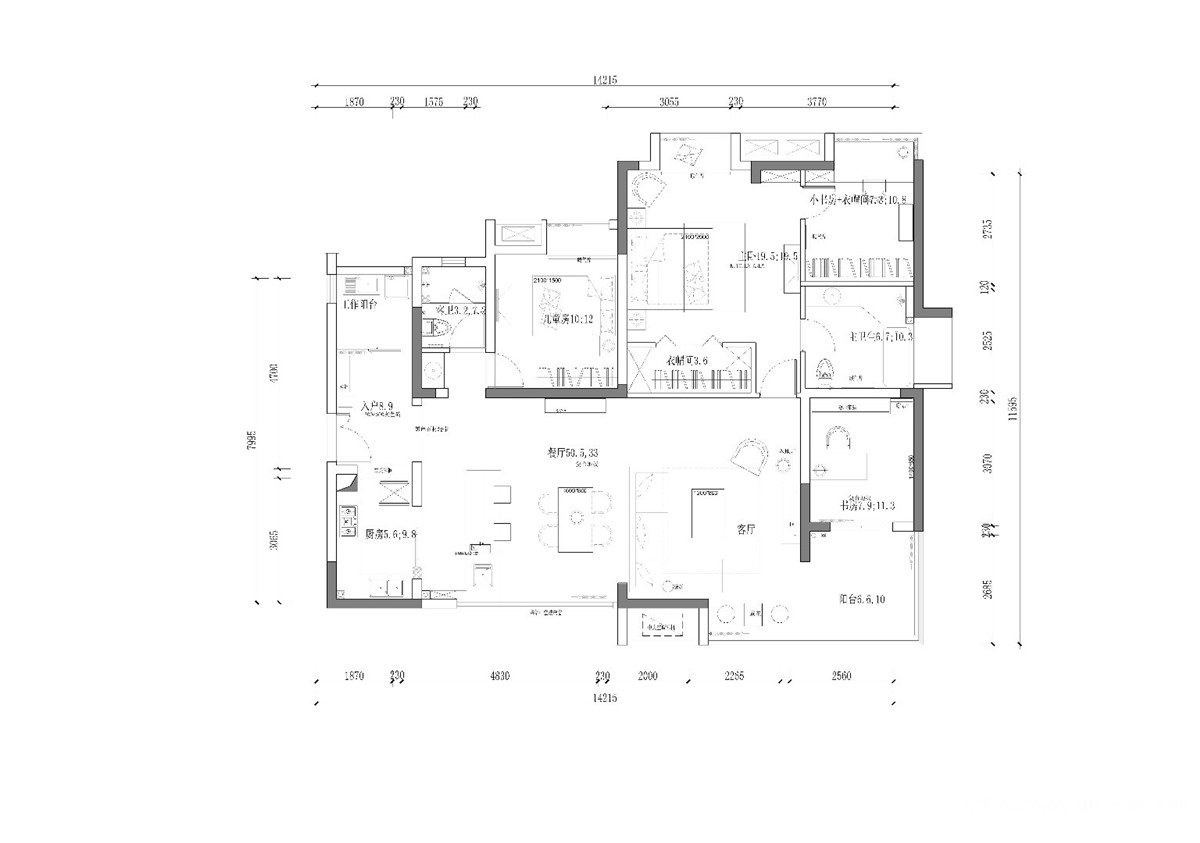
户型图
书房
客厅
休闲区
卫生间
卧室
本案设计师
业之峰专业设计师
我家装成这样多少钱?
相关案例推荐
报价计算器
免费量房
免费设计
回到顶部