110㎡三居现代简约风格其他
发布时间:
2019年07月14日
小区:其他 面积:110㎡ 户型:三居 风格:现代简约风格
设计说明
一家四口,儿女环绕膝下,红火的小日子,要有大海的简洁清新,还要挣脱一层不变的老套路,给这个蜗居注入新鲜的元素。米色调时尚温馨不突兀,客厅的白色墙面发出的是淡雅清新的现代简欧味道,时尚的米白色调沙发与电视背景墙的呼应,让整个客厅营造出时尚、高贵、轻松、愉悦的视觉感空间,营造出一个朴实之中的时尚简欧家居设计。
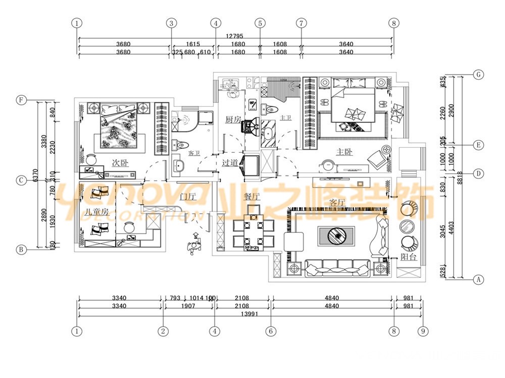
户型图

卧室


玄关

客厅






京公安网备11010502040911