133㎡三居现代简约风格中凯龙城
发布时间:
2019年07月05日
小区:中凯龙城 面积:133㎡ 户型:三居 风格:现代简约风格
设计说明
雨滴水面的环环涟漪在空间里凝固起来,轻盈的、质朴的、精致的。鱼游水中,亦动亦静,传递灵动的表情。
东方的风水气韵、枯山水的意境,沙、石、草、木、竹,质朴却真实。让光线在空间里穿行,动静相宜,没有张扬色彩,用朴素的事物给你心得体验。
此案例为客户的投资性住房,8米的大开间,采光极好,开阔的阳台,坐享汾河与城心得繁华。本身良好的自然条件,加上灵动轻盈的设计,
创造了一个轻松自然的享有东方韵味的居家环境。
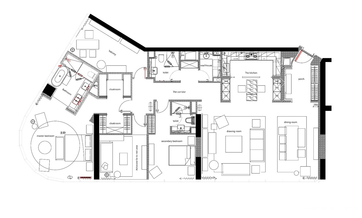
户型图

卧室



客厅


餐厅






京公安网备11010502040911