160㎡三居现代简约风格名士豪庭
发布时间:
2019年06月20日
小区:名士豪庭 面积:160㎡ 户型:三居 风格:现代简约风格
设计说明
美,是一种视觉和体验的双重感受,而设计之道在于对美的融合,对美的传递和导向,美不应有被定义为某种风格的界限,但凡给人以愉悦感受的事物、空间,都可称其“美”。基于此种理念,我们在永威上和府样板间设计中,延伸美的艺术,不拘泥于一种设计手法,不限定一种风格,而是在现代简约格调之中渗透中式风格气质,在传统和现代之间,寻得二者平衡, 从传统语汇出发,取其意而不破形,在意境东方的主题之下, 去寻求更多的现代情致,塑造宁静、淡然、优雅的生活空间
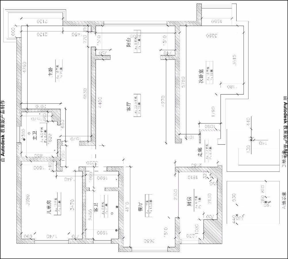
户型图

客厅




餐厅


卧室






京公安网备11010502040911