200㎡三居现代简约风格佰御都国际公馆
发布时间:
2019年06月20日
小区:佰御都国际公馆 面积:200㎡ 户型:三居 风格:现代简约风格
设计说明
本案的设计重点是会客空间与门厅、餐厅以及过道空间互通与交流,从设计手法上采用了从墙面上成品木线造型分隔与地面材质衔接呼应,以及顶面的空间的虚拟划分,达到各功能空间融会贯通的目的。简洁、现代的极少主义在本案中得到了淋漓尽致的体先。
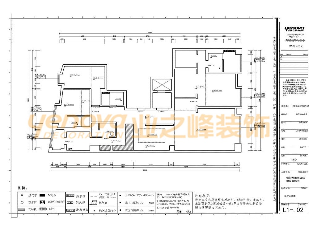
户型图

餐厅


客厅








京公安网备11010502040911