150㎡三居晓港名城
发布时间:
2019年06月10日
小区:晓港名城 面积:150㎡ 户型:三居 风格:
设计说明
“风雅之地,静谧安然”,这正是此案所表达的主题,中式更注重韵味的表达,和谐之美,在此案的设计中我们延续中式的这一特性,去繁从简,从而营造适合当代人文的一种意境。
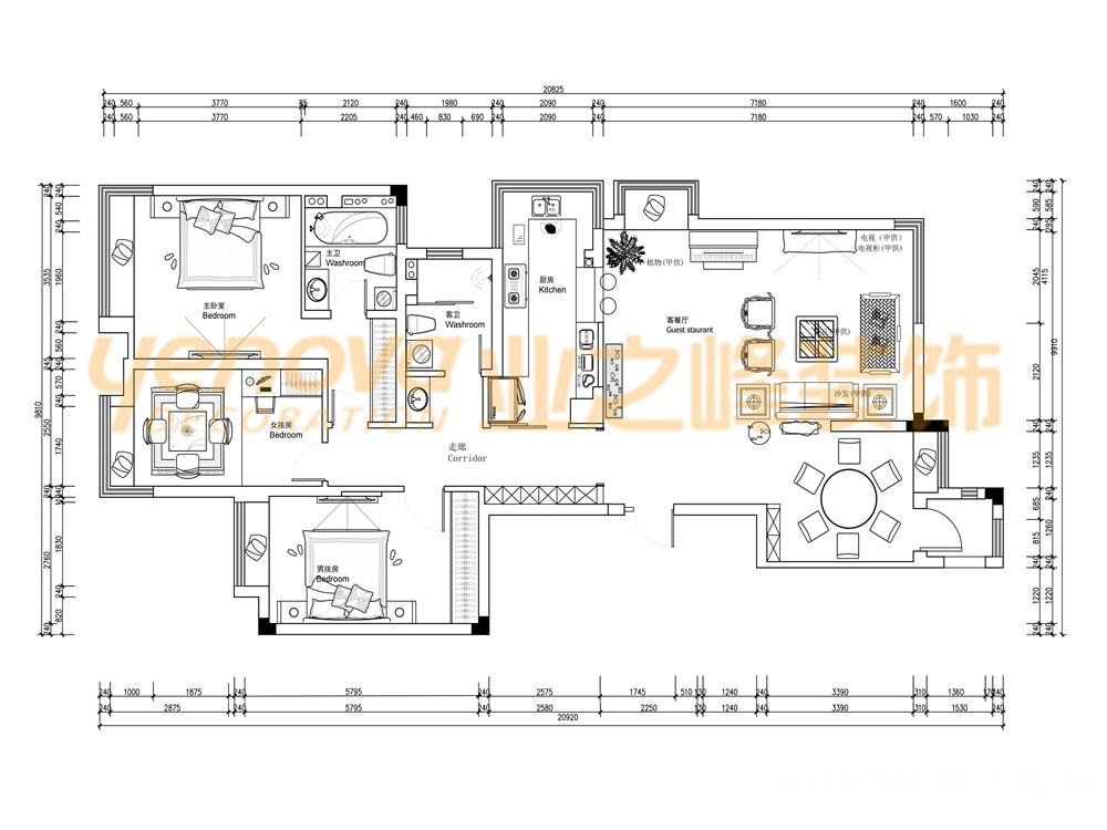
户型图

客厅



餐厅

卧室

玄关

“风雅之地,静谧安然”,这正是此案所表达的主题,中式更注重韵味的表达,和谐之美,在此案的设计中我们延续中式的这一特性,去繁从简,从而营造适合当代人文的一种意境。






