280㎡别墅盘龙湾
发布时间:
2019年06月08日
小区:盘龙湾 面积:280㎡ 户型:别墅 风格:
设计说明
本案为三口之家,父母偶尔来住,用轻奢风格营造出简单、大气的生活空间。原户型两房朝南、双阳台做成套间形式,睡眠、书房+衣帽间+大卫生间,提高生活品质和乐趣。
客厅:
米色的三人沙发搭配淡雅蓝的单人沙发,比较经典的搭配,使整个空间显得温馨浪漫,深咖色的电视柜与茶几,则让空间更加稳重而不过于浅淡。
电视背景、沙发背景都以石膏线条修饰,提高了整体空间的层次氛围,完美得诠释了简约美式的生活态度,清新的墙面颜色脱离了繁闹的都市生活。
墙面的装饰画、边几上的台灯、小摆件的摆放,无时无刻不散发着家的味道。
餐厅:
餐厅同样采用石膏线条修饰,打造舒适的就餐环境,同时也保留了与客厅空间的沟通性,营造一个温馨舒适的居住空间。
餐桌的位置在阳光明媚的地方,美式的圆形餐桌搭配亮眼的跳舞兰,一种浓浓的美式风情意蕴悠长。
书房:
书房白色调的书柜,给人干净、愉悦的感觉,整个空间明亮通透,可以收纳着各种各样的书籍,十分具有实用性,美式的书桌椅又彰显了书房的沉稳和质感。
主卧:
舒适温馨的卧室,保证了休息和睡眠的质量,从而能够精力充沛的迎接新的一天。
<
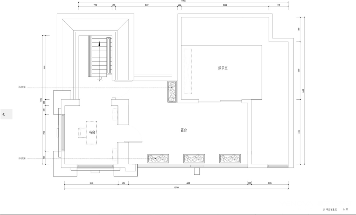
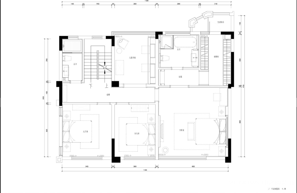
户型图

客厅





卧室


玄关

儿童房

餐厅





京公安网备11010502040911