110㎡三居现代简约风格龙湖紫宸
发布时间:
2019年05月25日
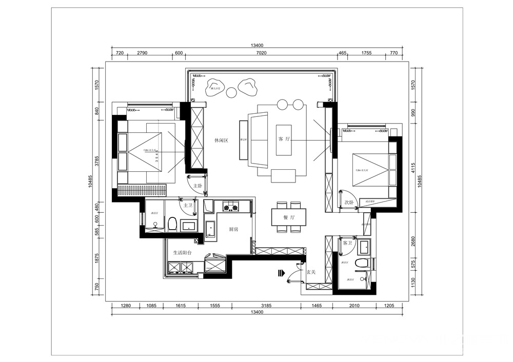
小区:龙湖紫宸 面积:110㎡ 户型:三居 风格:现代简约风格
设计说明
家,是细细品尝生活轨迹的所在,此案由于屋主喜爱简洁俐落设计,希望在家也能拥有明亮、宽敞的视野,因此在善于挥洒光线的设计师的导引之下,整体保留白色简单基调,搭配木色系柜体,透过木格栅、大理石、灰蓝云理墙堆叠鲜明层序,辅用镜面穿引一道道景致,纳入宽敞卧室与收纳需求,把原有三室整合为两室,拓展独立开放式书房,显现沉稳而不单调的空间氛围,无论置身于家中任何一隅,都能感受到自在无压的气息。
户型图

餐厅

客厅







京公安网备11010502040911