86㎡三居现代简约风格凯德世纪名邸
发布时间:
2019年05月25日
小区:凯德世纪名邸 面积:86㎡ 户型:三居 风格:现代简约风格
设计说明
本案采用现代风格。把时间撕成条形的印花棉布,温柔在每一个迟疑的瞬间,时光被你我揉在了手心,曲线中满是尘土的味道。用不意察觉的姿势传递那一丝最暖的阳光。阳光透过窗帘,洒满房间,是不是大多数的人都拥有比南柯还久的梦。
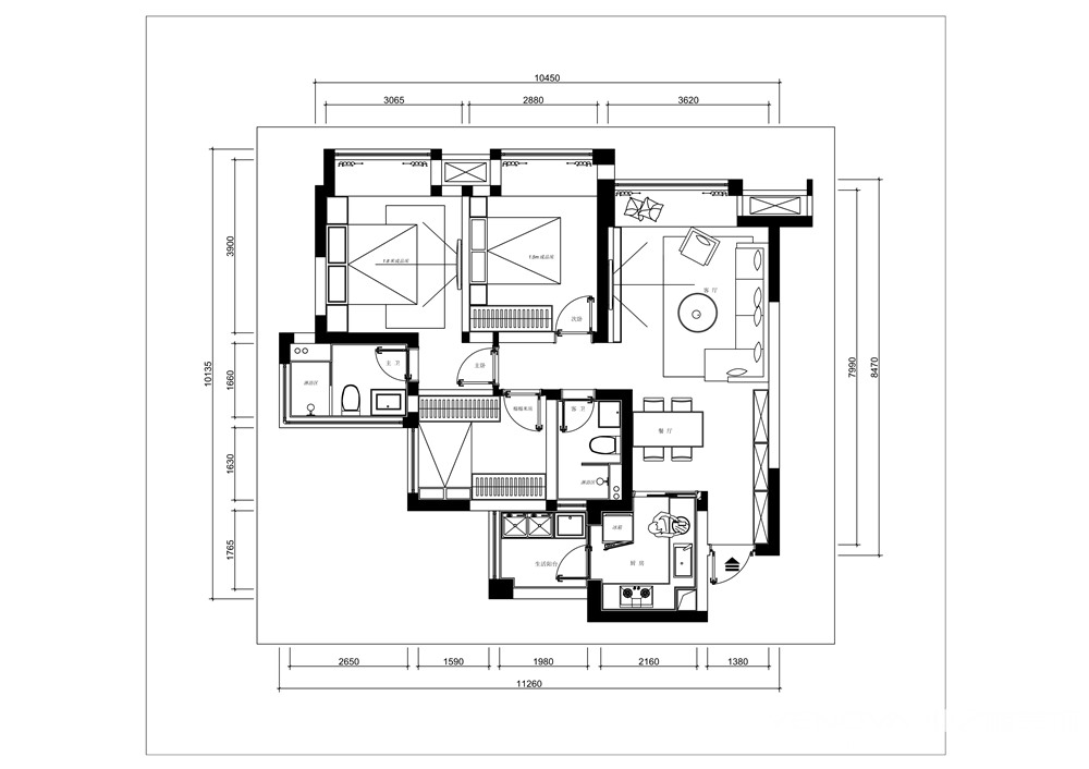
户型图

客厅




本案采用现代风格。把时间撕成条形的印花棉布,温柔在每一个迟疑的瞬间,时光被你我揉在了手心,曲线中满是尘土的味道。用不意察觉的姿势传递那一丝最暖的阳光。阳光透过窗帘,洒满房间,是不是大多数的人都拥有比南柯还久的梦。




