137㎡三居现代简约风格龙湖西宸原著御景
发布时间:
2019年05月25日
小区:龙湖西宸原著御景 面积:137㎡ 户型:三居 风格:现代简约风格
设计说明
此计方案的业主是一对年轻夫妻,风格倾向定位为现代风格,本案的业主喜欢沉稳赋有格调的风格,在美观的同时满足房屋的功能需求,此案运用比较稳重的暗色系,稍加亮色点缀,整个房屋简单又不失大气
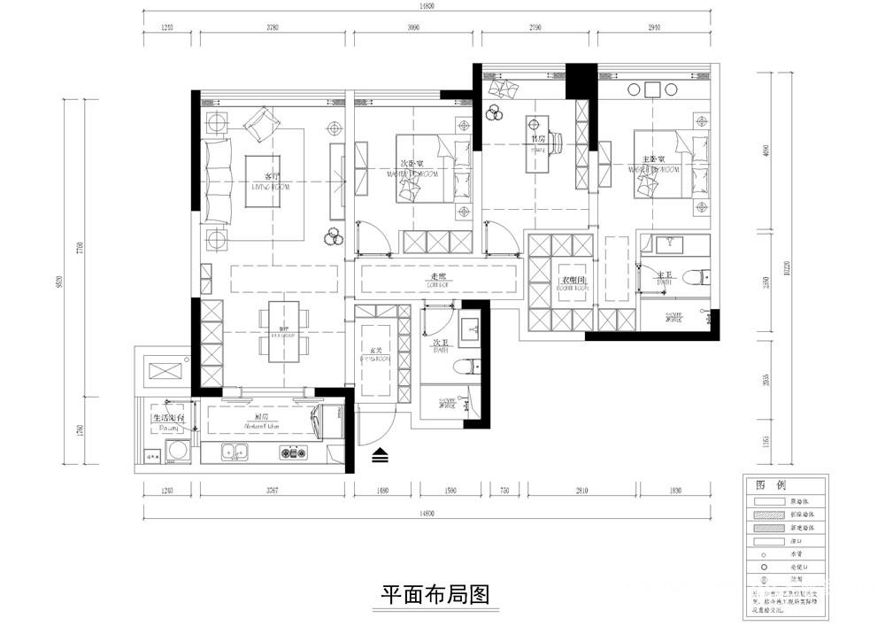
户型图

餐厅

卧室

客厅


此计方案的业主是一对年轻夫妻,风格倾向定位为现代风格,本案的业主喜欢沉稳赋有格调的风格,在美观的同时满足房屋的功能需求,此案运用比较稳重的暗色系,稍加亮色点缀,整个房屋简单又不失大气




