92㎡三居现代简约风格锦官阁
发布时间:
2019年04月20日
小区:锦官阁 面积:92㎡ 户型:三居 风格:现代简约风格
设计说明
本案以设计风格定位于现代格,在设计上采用了简洁明快的格调,此案例也是提倡简洁和实用,但也不失年轻人现代社会生活的精致与个性,材质上主要运用织物家具,人造石材,木材,打造一种休闲放松的居家环境。色调上主要以暖色调为主,为这对年轻夫妇营造一个舒适浪漫的居家氛围。
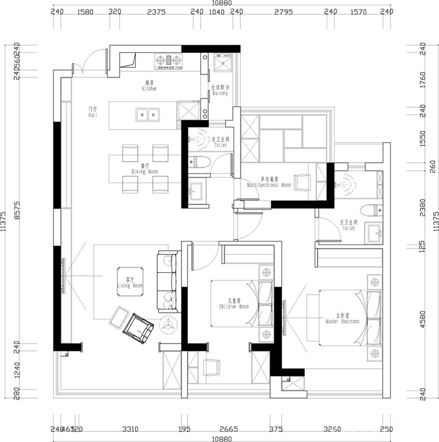
户型图

客厅


餐厅

卧室





京公安网备11010502040911