156㎡三居现代简约风格得一剑桥城
发布时间:
2019年04月19日
小区:得一剑桥城 面积:156㎡ 户型:三居 风格:现代简约风格
设计说明
业主是一对中年夫妇,男主是喜来登酒店高管,女主是家庭主妇,男主希望自己的家进去后给人的感觉是安静的,虽然房子是二层小复式,但是二楼几乎都是小阁楼,并且原始户型浪费空间比较大。在屋子常住人口还有男主的母亲和他们8岁的小男孩。
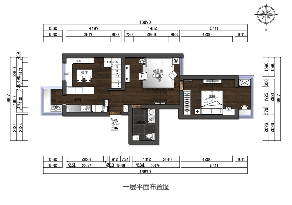
在结构上,我们将楼梯调整了位置,这样可以让会客厅比较完整,并且加大了空间,将厨房改成开放式厨房,男主经常过外出差也喜欢西餐,开放式厨房是整个空间扩大,敞亮。餐厅,卡座的形式,是整个空间更紧凑,而且合理的利用起来。一层做为男女主人公的一个活动区域。二层,由于将北面的卧室改成开放式的书房,留出一间小屋给小男孩,另一间方正的屋子给老人居住。
在软装上,客户希望家里面是安静的,喜欢深色,一层整体色调为冷色,壁纸选用纹理感凹凸比较强的灰色壁纸,木地板做电视背景墙,黑色的木地板地面,开放式厨房橱柜门板也选用的是黑灰色木纹饰面板再加上黑白两色的楼梯,整个屋子附有质感。 卫生间的设计上,砖选用的是黑色仿大理石的砖,凹凸感很强。 而二层的整体色彩要区别于一层,因为二层是老人和小孩平常的主要活动区域,因此二层主要以浅色系为主,一层的书房柜子门板以白色为主,点缀几个黑色的门板,也使整体不显的那么愣,老人房略显新中式的感觉。
在繁华喧嚣的大都市,更多的业主喜欢极简,这样子累了一天的心,待在这样减约的房子也许会让整个人静下来吧。。。
户型图

卧室


餐厅


客厅





厨房

书房





京公安网备11010502040911