128㎡三居美式风格碧桂园
发布时间:
2019年04月19日
小区:碧桂园 面积:128㎡ 户型:三居 风格:美式风格
设计说明
认真生活的人总是不放过任何可能的细节,设计,不仅仅是表面的虚设,更是在了解了居者的生活形态后,对家居灵魂的塑造。如同我们常说的线条勾勒与材质轮廓之间的互动,以及风格之间的碰撞,衍生出独特的生活空间。
地址:邢台百泉大道南侧
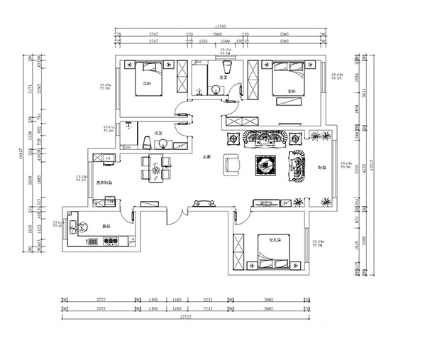
户型图

餐厅



玄关


客厅







京公安网备11010502040911