106㎡三居美式风格爱达壹号
发布时间:
2025年12月23日
小区:爱达壹号 面积:106㎡ 户型:三居 风格:美式风格
设计说明
1. 核心思路:跳出“传统美式=繁复雕花”的刻板印象,以“优雅复古+当代舒适”为原创内核,将经典美式的「对称美学」原创选用胡桃木家具(属暖木)搭配米白+焦糖棕主色调,既保留美式的仪式感,又用简化的pu线条避免空间压抑,形成专属的经典美式表达。
2. 设计依据:根据客户的需求,营造一个以“经典美式”风格为主温馨明亮的家,要保证整体空间采光与收纳,全屋通铺深色木纹地板,使得整个空间经典、沉稳,顶面选用有层次感的石膏线,整个空间以胡桃木色和暖白色为主,黑色作为点缀使整个空间形成“轻复古,重舒适”的经典美式表达。
3. 原创亮点:客厅背景墙摒弃常规美式护墙板满铺,采用简单的pu线条,使整个空间的风格得到了升华,降低传统美式的厚重感;入户门的正对面做了一个端景既能保证美观和使用性又能达到不闷重的效果,整体配色运用恰当好处,即深化了整个空间的经典美式风格又保留了温馨的氛围。
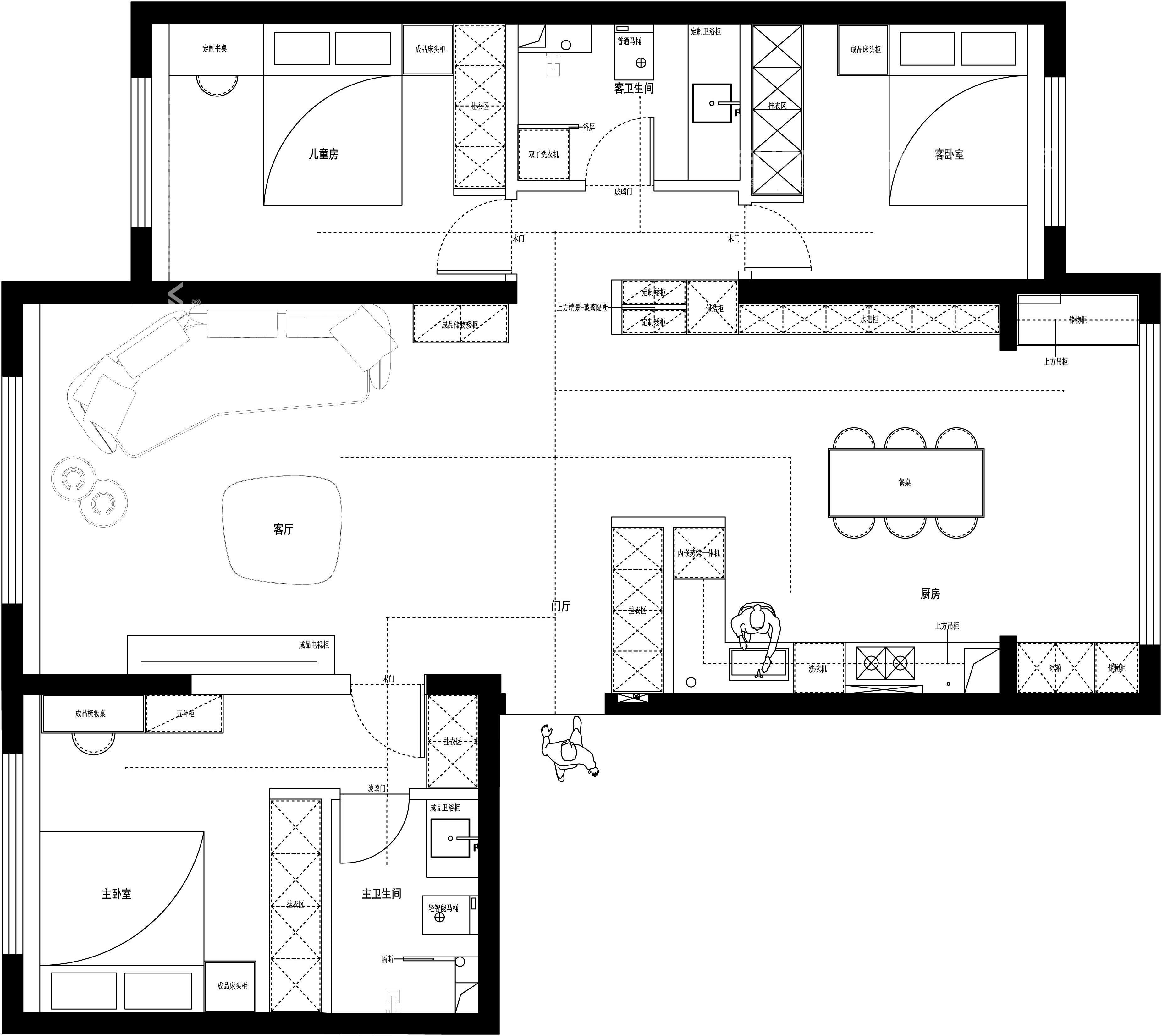
户型图

卫生间

次卧室


主卧室

餐厅



大厅

客厅





玄关





京公安网备11010502040911