70㎡二居北欧风格悦龙山
发布时间:
2025年12月21日
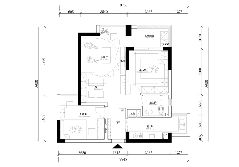
小区:悦龙山 面积:70㎡ 户型:二居 风格:北欧风格
设计说明
时光,在这里被原木的纹理轻轻挽留。
阳光吻过素雅的墙面,在温润的木地板上投下斑驳的光影,
如同冬日里一条摊开的、暖融融的羊毛毯。
蓬松的棉麻,陶罐里的绿意,
每一处细节都在低声呢喃着“回家”。
空气中仿佛萦绕着壁炉的微温与松木的清香,
将生活的锋芒,温柔地打磨成圆融的弧度。
摒弃繁复,只留存本质的温暖。
在这方木色包裹的静谧里,与最爱的人,
共度一个又一个被温暖接住的日子。
户型图





京公安网备11010502040911