010-84934479
扫码快速拨号 >
扫码快速拨号

128㎡三居新中式风格碧桂园

发布时间: 2019年04月19日
小区:碧桂园 面积:128㎡ 户型:三居 风格:新中式风格
设计说明

建筑承载着一座城市的记忆,而室内空间是建筑生命力的延伸。遵循腾冲城市精神沿革和文化传承,设计师在建筑设计的基础之上,融合中国传统元素与现代空间营造方式,构建了一个自然、闲适、清雅的居住环境

地址:邢台百泉大道南侧


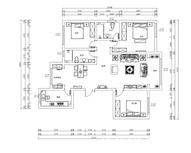
户型图
客厅
餐厅
玄关
本案设计师
业之峰专业设计师
我家装成这样多少钱?
相关案例推荐
报价计算器
免费量房
免费设计
回到顶部