142㎡三居鑫界王府
发布时间:
2019年04月19日
小区:鑫界王府 面积:142㎡ 户型:三居 风格:
设计说明
本案以传统的中式文化为底蕴,将清雅含蓄且代表中国传统家具中的经典元素与新中式抽象美感相结合,以一种东方人的美学观念控制节奏循序渐进,使整个案例格调优雅平和内敛,将东方文化的美感融入现代生活,尽显大家风范
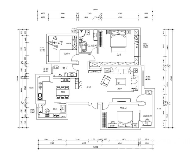
户型图

卧室

厨房

餐厅


玄关

客厅




本案以传统的中式文化为底蕴,将清雅含蓄且代表中国传统家具中的经典元素与新中式抽象美感相结合,以一种东方人的美学观念控制节奏循序渐进,使整个案例格调优雅平和内敛,将东方文化的美感融入现代生活,尽显大家风范









