142㎡三居鑫界王府
发布时间:
2019年04月19日
小区:鑫界王府 面积:142㎡ 户型:三居 风格:
设计说明
初步沟通时,客户已经有了一稿完整的硬装设计图纸,但是通过软装的设计过程,我们慢慢发现客户的需求和功能需要一些专业的设计规划和调整。餐厅与客厅是统一开放的空间,色调一致,所有搭配在视觉上都是相互联系的,窗帘、墙纸采用了完全相同的款式,这样可以让空间更加干净
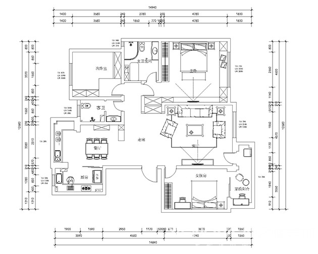
户型图

玄关

客厅




餐厅


卧室

厨房





京公安网备11010502040911