196㎡四居美式风格天下锦城
发布时间:
2019年04月19日
小区:天下锦城 面积:196㎡ 户型:四居 风格:美式风格
设计说明
认真生活的人总是不放过任何可能的细节,设计,不仅仅是表面的虚设,更是在了解了居者的生活形态后,对家居灵魂的塑造。如同我们常说的线条勾勒与材质轮廓之间的互动,以及风格之间的碰撞,衍生出独特的生活空间。
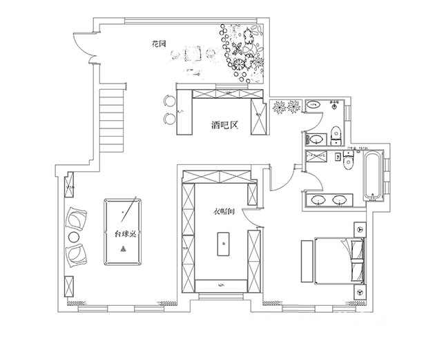
户型图

餐厅


客厅





认真生活的人总是不放过任何可能的细节,设计,不仅仅是表面的虚设,更是在了解了居者的生活形态后,对家居灵魂的塑造。如同我们常说的线条勾勒与材质轮廓之间的互动,以及风格之间的碰撞,衍生出独特的生活空间。







