120㎡三居现代简约风格麒融国际
发布时间:
2019年03月29日
小区:麒融国际 面积:120㎡ 户型:三居 风格:现代简约风格
设计说明
本案的业主是一位有着资深阅历的成功人士。对生活有着自己独到的偏好和追求。设计师基于此将风格定位为简洁、时尚、前卫、大气。本方案设计的重点是客厅与餐厅在空间上的划分。
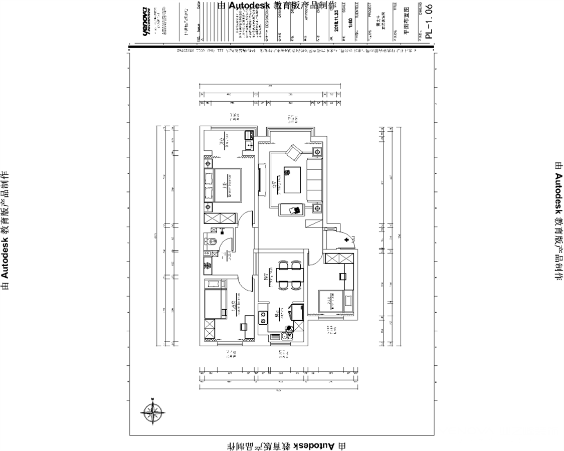
户型图

客厅




餐厅


卫生间

本案的业主是一位有着资深阅历的成功人士。对生活有着自己独到的偏好和追求。设计师基于此将风格定位为简洁、时尚、前卫、大气。本方案设计的重点是客厅与餐厅在空间上的划分。







