134㎡四居现代简约风格龙湖紫宸
发布时间:
2019年03月28日
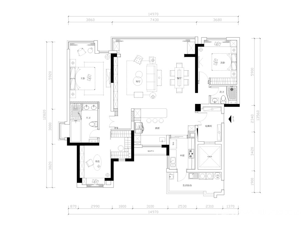
小区:龙湖紫宸 面积:134㎡ 户型:四居 风格:现代简约风格
设计说明
成都业之峰装饰设计案例:本案为现代风格,着重为其打造实用功能和空间意境,通过纵横的块面来表现空间结构之美。平直的块面、简洁的造型、纯净的材质、鲜明的色彩对比,展现一个都市风尚的氛围。
户型图

客厅


餐厅

卧室

成都业之峰装饰设计案例:本案为现代风格,着重为其打造实用功能和空间意境,通过纵横的块面来表现空间结构之美。平直的块面、简洁的造型、纯净的材质、鲜明的色彩对比,展现一个都市风尚的氛围。




