110㎡三居现代简约风格金房大榕湾
发布时间:
2019年03月28日
小区:金房大榕湾 面积:110㎡ 户型:三居 风格:现代简约风格
设计说明
成都业之峰装饰现代风格装修设计案例:现代简约风格是进来比较流行的一种风格,追求时尚与潮流,非常注重居室空间的布局与使用功能的结合。用最简单的方式营造出空间的温暖与惬意。
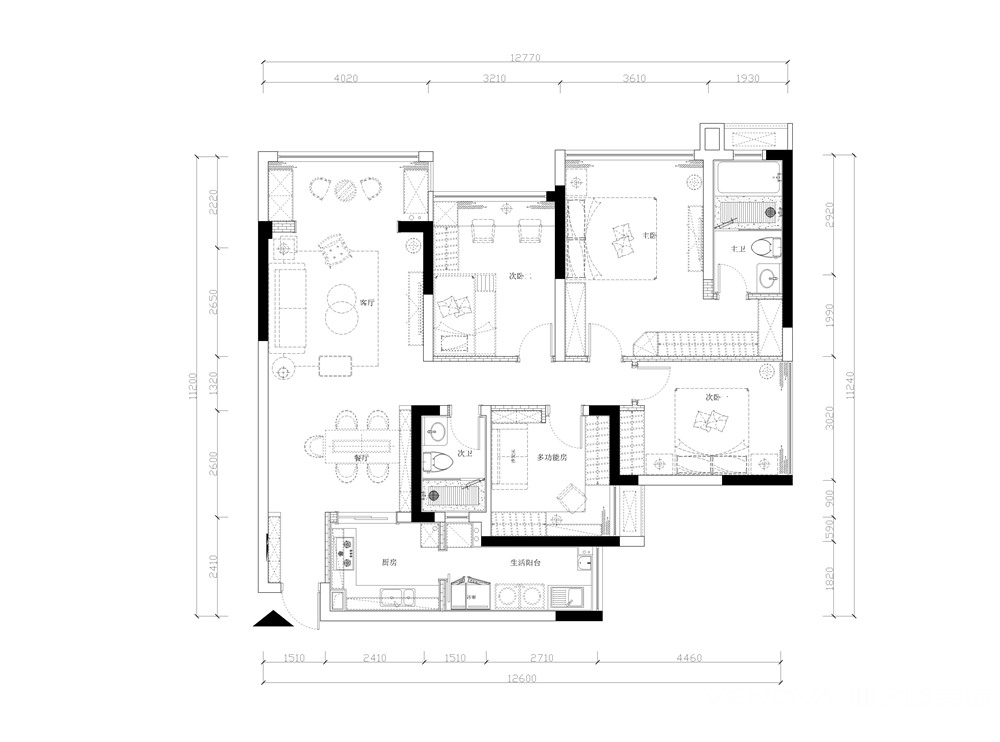
户型图

客厅


卧室

书房

成都业之峰装饰现代风格装修设计案例:现代简约风格是进来比较流行的一种风格,追求时尚与潮流,非常注重居室空间的布局与使用功能的结合。用最简单的方式营造出空间的温暖与惬意。




