109㎡三居现代简约风格华润凤凰城
发布时间:
2019年03月28日
小区:华润凤凰城 面积:109㎡ 户型:三居 风格:现代简约风格
设计说明
成都业之峰装饰设计案例:本案为美式风格,本案业主是一个温馨的三口之家,整体的色调按业主要求还是选择按照以前房屋的色调来做,家具的选择以美式的厚重为主,配以简单的装饰线条,达到了整体的一个协调性。
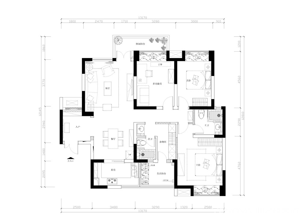
户型图

厨房

客厅



卧室

成都业之峰装饰设计案例:本案为美式风格,本案业主是一个温馨的三口之家,整体的色调按业主要求还是选择按照以前房屋的色调来做,家具的选择以美式的厚重为主,配以简单的装饰线条,达到了整体的一个协调性。





